Casa indipendente in Vendita a Scicli
Prezzo:
Descrizione
Coldwell Banker propone in vendita una casa indipendente in centro storico a Scicli.
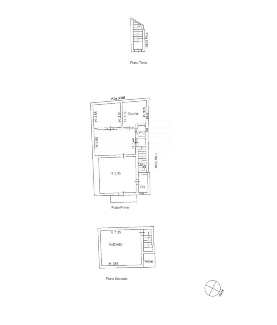
L’immobile si sviluppa prevalentemente al primo piano, in cui troviamo un ingresso soggiorno, due camere, bagno e cucina con tipico forno in pietra.
Al secondo piano invece dispone di un piccolo terrazzino e di un locale sottotetto.
La casa è totalmente da ristrutturare e da personalizzare in base alle proprie esigenze, conservando i tratti storici delle volte e del pavimento in pietra pece tipici della tradizione siciliana.
La proprietà si trova nel centro storico barocco di Scicli, a pochi passi a piedi dalle maggiori attrazioni culturali e turistiche, dai principali servizi, bar e ristoranti
L’investimento ideale per chi desidera un’abitazione dal carattere storico, da vivere o da mettere a reddito, in un luogo di rara bellezza e autenticità.

