Appartamento in Vendita a Chiaramonte Gulfi
Prezzo:
Descrizione
CBI Maxi Real Estate propone in vendita a Chiaramonte Gulfi un luminoso appartamento posto al primo piano di una palazzina dotata di ascensore.
Attualmente libero al rogito, l’immobile si presenta in buone condizioni e, grazie alla sua posizione, ha un ottima esposizione al sole e gode di una vista panoramica semplicemente spettacolare.
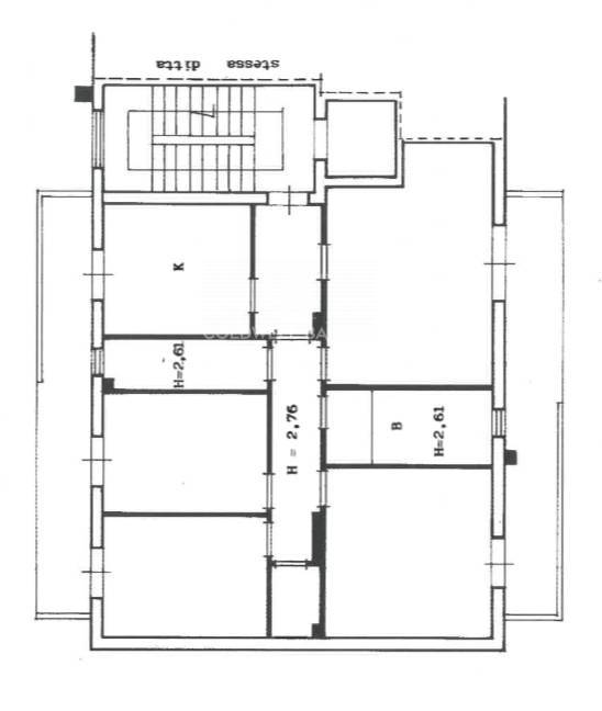
Con una superficie totale di 121 metri quadrati, di cui 113 calpestabili, l’appartamento offre ampi spazi e una disposizione ottimale dei locali.
Si compone di un accogliente e ampio soggiorno, una cucina abitabile, una camera matrimoniale, due camerette, due bagni, ripostiglio.
Tutte le stanze hanno l’affaccio sul balcone e come già detto una vista mozzafiato.
Riscaldamento autonomo a metano.
Lo stabile si presenta in ottime condizioni sia estetiche che di pulizia.
Ideale per una famiglia, questo appartamento è una buona opportunità per chi cerca un’abitazione in una zona comoda e ben servita.
Non perdere l’occasione, contattaci per maggiori informazioni e per prenotare una visita.

