Casa singola in Vendita a Modica
Prezzo:
Descrizione
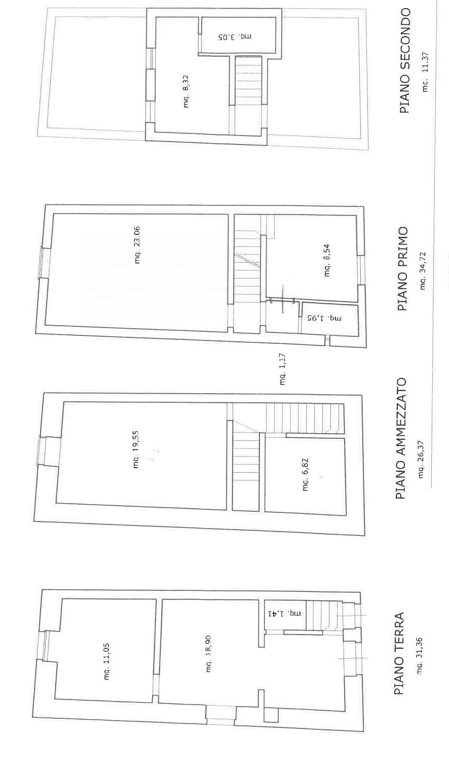
Nel cuore di Modica Alta, in zona Santa Teresa, Coldwell Banker propone un ampio e luminoso terratetto di 160 mq disposto su tre livelli, ideale per chi cerca spazio e atmosfera tipica.
Al piano terra, servito da due ingressi indipendenti, si sviluppa la zona giorno: cucina con comoda area pranzo, soggiorno accogliente e un pratico servizio/lavanderia.
Un piano ammezzato ospita due ambienti di circa 25 mq ciascuno, perfetti come spazi aggiuntivi adibiti a guardaroba/ripostigli.
Salendo al primo piano troviamo una grande camera matrimoniale, un bagno e un locale di disimpegno che conduce all’ultimo livello.
Al secondo piano, un angolo cottura e un ulteriore bagno completano gli interni, mentre all’esterno due terrazzini abitabili regalano una splendida vista panoramica sulla vallata di Modica: lo scenario ideale per colazioni all’aperto o serate al tramonto.
La posizione, a pochi passi dal centralissimo Corso Vittorio Emanuele, rende l’immobile particolarmente interessante anche per chi desidera avviare una struttura ricettiva o un investimento turistico.

