Villa a schiera in Vendita a Modica
Prezzo:
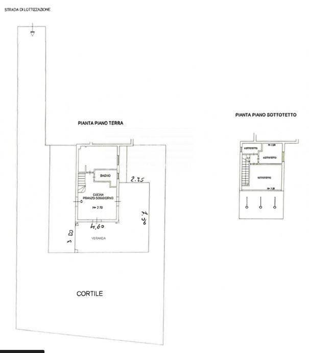
Descrizione
Nell’esclusivo villaggio Residence Bougavillea, Coldwell Banker propone in vendita una villetta su due livelli e un giardino ad uso esclusivo, situata nella rinomata zona di Marina di Modica.
La villetta si compone:
- piano terra: soggiorno, cucina, bagno e una comoda camera matrimoniale;
- primo piano: camera matrimoniale, camera singola e bagno;
- completa la proprietà una comoda veranda, un giardino, e un comodo parcheggio interno dove è possibile parcheggiare fino a tre auto.
L’immobile è dotato di tre climatizzatori.
L’immobile si presenta in buone condizioni ed abitabile da subito.
Il Residence Boungavillea è un villaggio privato contornato da giardino privato e giochi per bambini. La sua posizione permette tranquillità ma in pochi in minuti a piedi è possibile raggiungere il centro di Marina di Modica dove è possibile trovare tutti i servizi essenziali (supermercato, farmacia, locali e lidi balneari) e la spiaggia, dista solo 600 metri.

