Appartamento in Vendita a Ragusa
Prezzo:
Descrizione
COLDWELL BANKER propone in vendita LUMINOSO APPARTAMENTO CON ASCENSORE E POSTO AUTO.
Via L. Da Vinci, 24 – Ragusa.
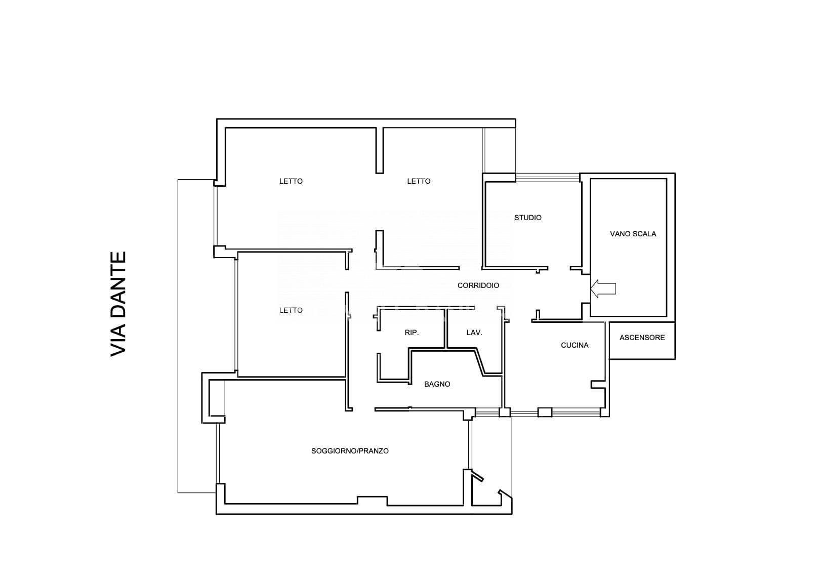
L’appartamento si trova al piano secondo di uno stabile signorile degli anni ’60 dotato di ascensore ed è composto da ingresso, ampio soggiorno con cucina a vista, open space divisibile in due camere, tre camere da letto, ampio bagno finestrato, doppio servizio/lavanderia, comodo ripostiglio, balcone panoramico con ampie vetrate su piazza Stazione. A completare l’offerta un posto auto di pertinenza all’interno del garage comune.
Riscaldamento autonomo. Tripla esposizione.
Spese condominiali circa 40€/mese.
L’unità immobiliare necessita di lavori di ristrutturazione.
La zona è ricca di servizi di prima necessità, quali supermercati, bar, negozi, teatro, scuole, trasporti pubblici etc..
Disponibilità immediata.

