Villetta in Vendita a Comiso
Prezzo:
Descrizione
Coldwell Banker presenta in vendita una graziosa villetta indipendente di 140mq situata in Contrada Billona, in una zona tranquilla e in forte espansione, a pochi minuti dal centro di Comiso.
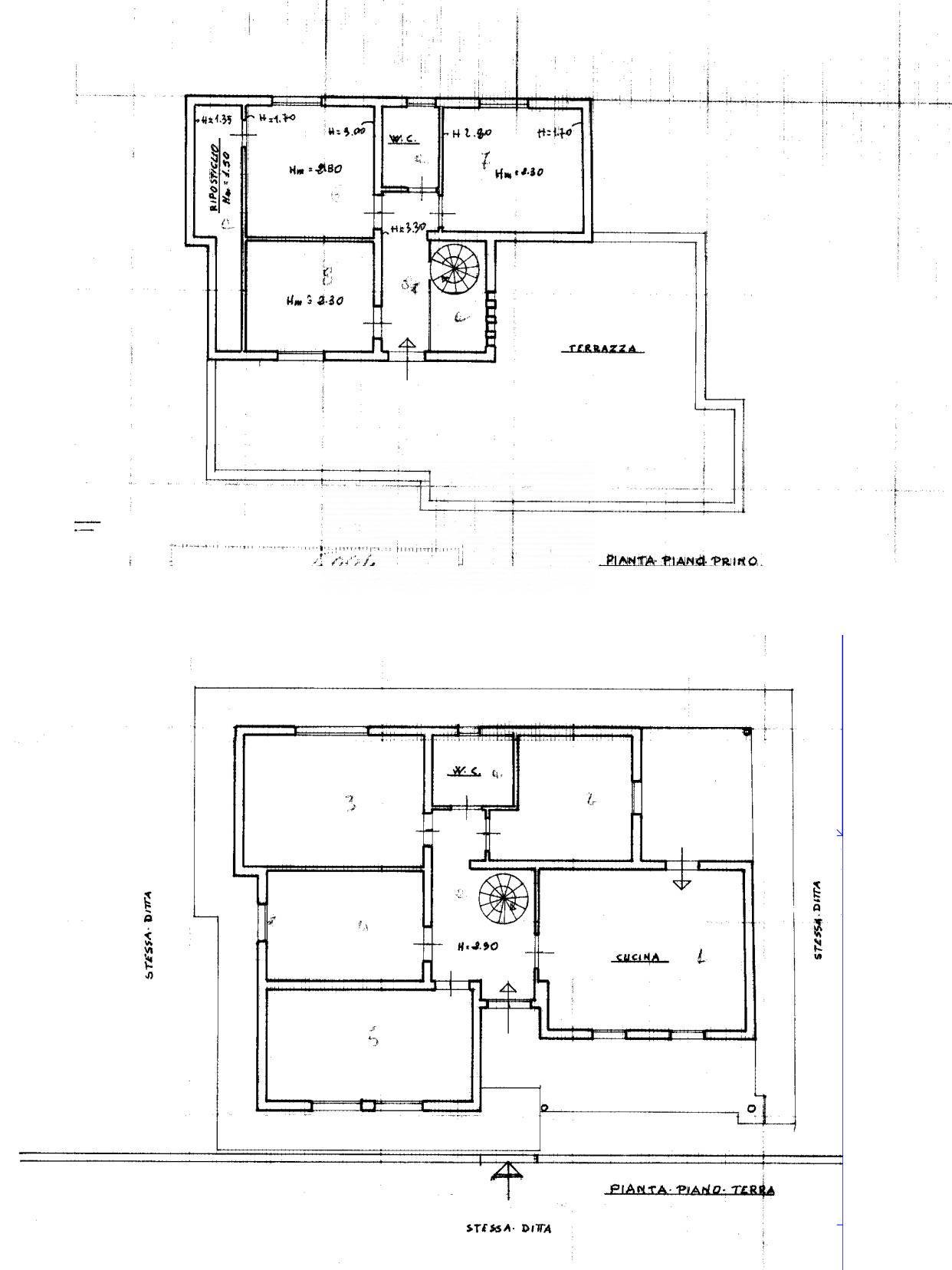
La casa si sviluppa su due livelli:
- Piano terra: ingresso su ampia cucina abitabile con camino e accesso diretto al giardino, salotto, due camere da letto, bagno e cucinotto con secondo accesso esterno.
- Piano superiore: collegato da scala a chiocciola a quello inferiore, ospita tre stanze a uso versatile, un ripostiglio mansardato, un bagno e un terrazzo panoramico con splendida vista sui dintorni.
All’esterno, un ampio giardino perfetto per vivere e godersi gli spazi aperti in totale privacy oltre che due posti auto e due casotti adibiti a magazzino.
L’immobile non dispone di impianto di riscaldamento ma è dotato di camino funzionante.
La posizione garantisce tranquillità, comodità e rapido accesso ai servizi cittadini che si trovano a massimo 10 minuti di auto.
Libera subito e disponibile al rogito.
Per maggiori informazioni o per fissare una visita, non esitare a contattarmi.

